tab tab
  • 2020.07.13

    イチオシ間取り バーカウンターがある平家4人暮らし
    注文住宅の間取りってどうやって決めればいいの?

    『注文住宅が欲しい』と思い始めて、間取りを考えるのは楽しいのですが、なかなか理想的な間取りや、詳細な高さを決めたりすることは、かなり苦労すると思います。
    そこで、注文住宅を考えるポイントをいろいろな角度からご紹介してまいります。こちらを参考にしていただき、少しでも理想的な間取りをイメージできたら幸いです。
     

    平家でバーカウンターのある暮らしって?

    今、世間を騒がせている新型コロナウイルスの影響で、飲食店の自粛制限のため、お気に入りのバーでお酒を楽しめなくなりました。
    そこで、お家に『バーカウンター』があったら、この自粛生活も楽しくなるのではと考えてみました。
    私ごとですが、はるか昔バーテンをさせていただいた事があり、自分の好きなお酒を集めて、楽しんでいた時期がありました。その頃はカウンターなどなく雰囲気がでませんでした。
    バーカウンターと言っても色々ありますが、センス次第でおしゃれに、お部屋の空間を変身させてくれるので、是非、ご検討することをオススメいたします!
    ひとくくりにカウンターといっても、大人の雰囲気のスタイリッシュなものから、ナチュラルでカジュアルな雰囲気のものまで、どのようかカウンターを選ぶかで雰囲気が大きく変わります。
    キッチン周りの造りに関しては、色々とご家族の想いがあります。バーカウンターだけの用途ではなく、お子様とのコミュニケーションにも大事な場所となります。
    カウンターで宿題をする
    奥様の休憩にお気に入りのティーカップでのひとときに
    読書をしながら・・・
    などなど、カウンターでの自由な時間を想像すると、お家にいながらお店気分を味わえます。
     

    間取り

    平家のご紹介をいたします。
    二階建てが多いのですが、最近、平家のご相談が増えています。
    若いうちは二階建てもいいのですが、将来のことを考えるとやっぱり平屋かな〜っと。フラットな居住空間の使いやすさなどが、人気なのでしょう。
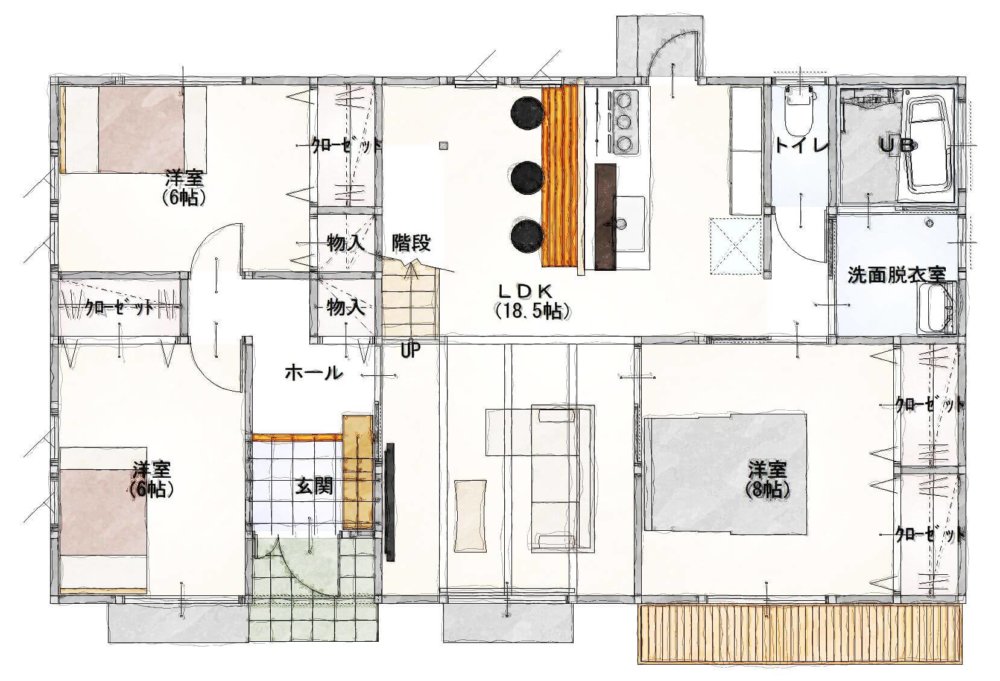
    3LDK  28坪の大きさです。
    4人家族を想定した間取りであります。LDKは20畳の広々としており、L字型の形をしております。通常の対面式キッチンですと、キッチンに洗い物などがあると、不意なお客様が来られた時に気になるので、あえてこのような配置にしました。バーカウンターをオシャレに造って、リビングからも離れるのでいい雰囲気になります。
    夫婦の寝室を8畳の洋室として、そこからのアクセス(動線)を中心に考えて、トイレ・ユニットバス・脱衣室を配置しました。また、移動に将来必要となる、手摺りの下地を入れておけば安心です。
    今ではあまり縁側(えんがわ)があるお家をみなくなりました。縁側は、日向ぼっっこをするのにもいいですし、洗濯物などを干すのにも大変便利です。縁側のある暮らしもオススメですよ!
    子供部屋が6畳×2ございますが、小さい時は収納などを配置せず、広々と一つの部屋で使うのもいいです。そういった、将来大きくなってからプライバシーのために間仕切りするのも可能です。
    平屋の場合、結構、造りによっては小屋裏(屋根の中)のスペースが大きく取れます。そこを収納として活用すべきとオススメしております。何故かというと、平家で収納を増やすことは、建築面積が増えてコストも上がるためです。小屋裏を利用するため、基礎工事など必要なくなるからコストが抑える事ができるのです。
     

    まとめ

    いかがでしたでしょうか。
    バーカウンターでオシャレに、ご自分の趣味や家族とのコミュニケーションを広げるのはいかがでしょうか!
    お好みのインテリアにあったバーカウンター。楽しみですね!
    最近は便利なもので、お好みのインテリアなどを、簡単に探す事ができるアプリケーションがあります。
    ご存知の方もいらっしゃるとおもおいますがご紹介をさせていただきます。
    RoomClip(ルームクリップ)
    ルームクリップはこちら
     
    Pinterest(ピンタレスト)
    Pinterestはこちらです
     
    あなた好みのインテリアをお探しください!
     
    最後までありがとうございました。
    佐久間 岩男
     
     

    この記事を書いた人
    佐久間 岩男

     佐久間 岩男

    アイリスホームの代表取締役社長であり、同時に「何でもします課」を自ら公言している。実直な性格だが(見かけによらず)同乗者にあたたかい飲み物を事前に用意しているやさしさを併せもっている。南相馬で生まれ南相馬で社長になった南相馬純血。実は24歳から社長業に勤しんでいるので社長歴20年のキャリアをもっている。とても人情豊かな社長である。

人気のあるブログ