2018.04.20
現在建築中!!大木戸モデルハウスの間取り
家造りのスタート
家を建てようと思うと、まずは土地をどこにするかが始まります。
色々な敷地を見ながら少しずつおぼろげに見え始めるのが間取りです。
年配の方になると昔ながらの大きな農家作りの家に住んでいた方が多いので
間取りの傾向は玄関を真ん中に左右に部屋を分けるの方法を取りがち。
間取りは年齢層によって傾向がはっきりと出ますのでお客様の求めるイメージによって設計は変更になっていきます。
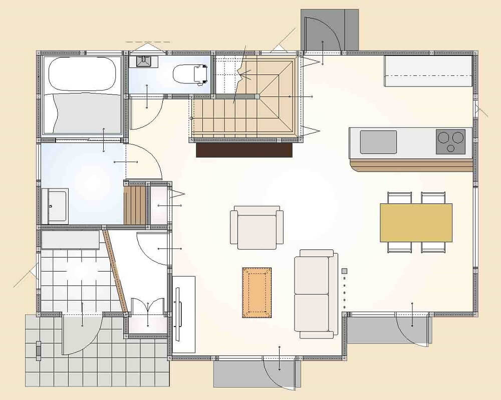
仮想ファミリー・1F
今建築中のモデルハウスの間取りです。
お客様がいないモデルハウスの設計の際にまず考えるのは仮想のお客様を創造することから始まります。
35~40代のご夫婦、お子さん2人。ライフスタイルはどうなのか?今までどんな所に住んでいたか?
趣味は何で、これからどんな人生設計をしているか?
そんなことを少しずつ妄想していきながら基本的なプランを決めます。
今回、生活の場はワンルーム形式でLDKと洗面は連続的。視線に奥行きを持たせることで広く感じられるように出来るように。
リビング階段にはメリット・デメリットがあって経験された方はご存知でしょうが、冬の寒さがきつかったり、、、お子さんが帰ってきたのが手に取るように分かったり、、、
リビング階段をさけるお客様も中にはおられます。冬の寒さ、、、これはまた違う方法で解消できたりもするので
デメリットで終わらせないような工夫があったりもするのですがまた後日に。
個人的に必ず設けて欲しいと思うのは玄関のクローゼット。
ホテルのクロークと同じような考えです。玄関収納の靴やレイン系に目がいきがちですが、あると色々な使い方が出来ます。
仮想ファミリー・2F
2Fは寝室と子供部屋2つがイメージ的な間取りです。
南側に配置して(日当たりが良好です。)窓のスペースは出来れば大きく取り(風の入りも重要です。)収納はもはや必須レベル(決して後悔しないですから(^o^)/)
寝室は最低8帖は必要です。ご夫婦で寝室を分ける場合は部屋として分けるのではなく引戸やパーテーション等をお勧めします。子供部屋は6帖あると広くなく狭くなくと言った所。シングルベッド、勉強の机、テレビ、家具。
置いていくとスペースはそれほど無くなりますが、そのちょうど良さが逆に良い
2階にトイレを設けるか設けないかは意見が分かれますけど
僕は一軒の家にトイレは2つあったほうが間違いないと考えます。
朝のストレスや、夜中のちょっとした時に部屋の近くにトイレがあるのは
慣れてしまうとそれだけで不便だったりしますので
1階と2階をつなぐ階段ですが、まっすぐな階段より廻り階段。
階段の段数は会社さんによって違いますが、当社は15段上がりきり。
この辺は感覚によりますが、少し面積を取って階段はきちんとした段数に
した方が後々のためにもGoodです。階段下のスペースは収納にして有効活用。
スモーカーの憩い
また意外に使えるのが半屋外としてのスペース。1階であればサンルームやウッドデッキ。
2階であれば間取りにあるバルコニーがそれに当たります。
外と中をつなぐ役割のしてくれるバルコニーは特に雰囲気的に閉鎖的な感じになる2階に開放感を与えてくれますし、肩身の狭いスモーカーの憩いの場です。
終わりに
今回のモデルハウスは33~34坪程度。決して大きくはないこじんまりとした造りです。
相双地域だと家単体が50坪とか大きくなりがちですけど、例えば34坪母屋+15坪ガレージとかライフスタイルによって色々な選択肢があると思います。
多くの選択肢を選ぶ中で、少しでもあなたのアドバイスが出来ればと、切に願うばかりです。






