2018.04.22
南相馬市原町区大木戸分譲地① セカンドハウスに平屋の間取りを考えてみます。
考えてみましょう。
皆さんこんにちは。本日はバーチャルのご家族から一つの平屋の間取りを考えてみましょう。今回の敷地は当社モデルハウスの南にある大木戸分譲地①の1画です。住所は原町区大木戸南東方。立地条件としてはコメリやミニストップが近くにあり、ジャスモールが車で約10分の距離にあります。学区は石神第二小学校学区。
大通りから一本入った所のため車より犬の散歩の人の方が多いです。敷地の広さは約80坪。広くもなく狭くもなくがちょうど良い感じにしてあります。建物は2階建てを考えてもいいし、平屋でも良いと思います。外溝は少し大きめのガレージやカーポート、園芸、色々なことを考えることが出来ますね。
平屋建ての場合
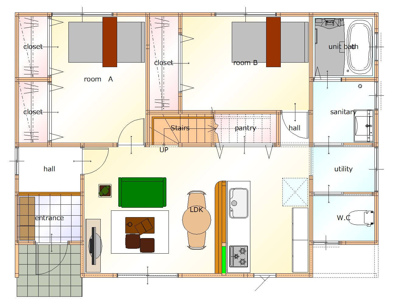
今回はその中でも最近のトレンド、平屋の計画をしてみます。架空の家族構成は子育てを終えたご夫婦二人のセカンドライフとしての家。総面積は建坪約22坪。2LDK。広さはちょうど良さを重視し、収納を出来るだけ取って部屋が狭くても広く感じる間取りにします。LDKは対面式のキッチンでワンルーム風に。リビングダイニングで約8帖の広さ。2人がけのダイニングテーブルとソファでもいいし、ラグマットを敷いてぬくぬくコタツでもいいと思います。
テレビは液晶の55インチ以上をローボードに置き、1台にまとめる。キッチンからサニタリーに行く前にワンクッションとしてユーティリティ(自由に使えるちょっとした場所)を設けます。造り付けで棚を設けてもいいしデスクを置いても良いしアイロンがけや家計簿と、困った時に助かるスペースになると思います。
またキッチンからのつなぎから、使いやすいように収納にリメイクするのも一つの手。家事室に繋がってトイレと洗面に分かれていくが、トイレは一般的な広さよりちょっと大きめにします。理由は単純で、将来的な介護や老後のケアをしやすくするためです。洗面から繋がるユニットバスは1坪タイプ。平屋で20坪だとお風呂は0.75坪とせまかったりするけど毎日足を伸ばして入りたいのは誰もが考えることだし、テーマは悠々自適。小さな贅沢なのです。
LDKからつながる部屋は2室あり、夫婦のそれぞれの個室でもいいし、お客様が来たときの客間にもなります。ベッドの方を想定して洋室としていますが、和室にして雰囲気を変えてもおもしろいかもしれません。子供や孫が顔を見に来る前に布団を干しておけるように日当たりの良い南側に物干しを設けるのも良いですね。
屋根裏の秘密基地
間取り上今回は平屋なのに階段があるのはお分かりでしょうか?これは屋根裏を利用した収納です。平屋を考える際に、部屋の広さを重視すると犠牲になりやすいのは収納のスペースであることが多く、また実際に平屋を建ててみると、屋根の形によっては屋根裏にもったいないくらいのスペースが広がっている事が多いです。
収納と明記しましたがそれなりの広さを取れば、十分に書斎やシアタールームとして機能します。こういった収納を作る際は広さや屋根の形にもよりますが、テレビの配線やコンセントに気を配っておくと、将来便利な所になったりするので考えてみてください。あくまでバーチャルなので、実際にやるとなるとお金はかかりますが、決して損はしないスペースになりますよ。
今回のレシピ
外溝はご家庭によって違うので、あくまでも例として。けれどやはり緑はあったほうがいいし平屋になると外と中がはっきりしてしまうので、半屋外としてウッドデッキをやると精神的に広さをより感じるでしょう。半屋外の場所は外と中をつないでくれるので重宝するスペースです。晴れた日の日向ぼっことか、お気に入りのお茶を座ってのむとか、バーベキューするとか、使い方は色々出てきます。
今回のレシピ
バーチャルファミリー 夫婦2人 50~60代
敷地 約80坪 浄化槽地域 建物 約22坪2LDK+屋根裏の秘密基地
外溝 カーポートやガレージ、ウッドデッキ、ガーデニング、境界のフェンス。
家造りって考える楽しさが本当にあります。現実的な部分もありますけど、そこを楽しんでほしいですね。






