tab tab
  • 2018.05.25

    ヒューマンスケール
    いかがお過ごしですか?

    五月も終わりに近づいてきて、夏の香りがとてもする今日この頃。
    午後は30度を超える暑さの影響がもろに出ていて、気づくとアイスコーヒーを買う自分がいる。
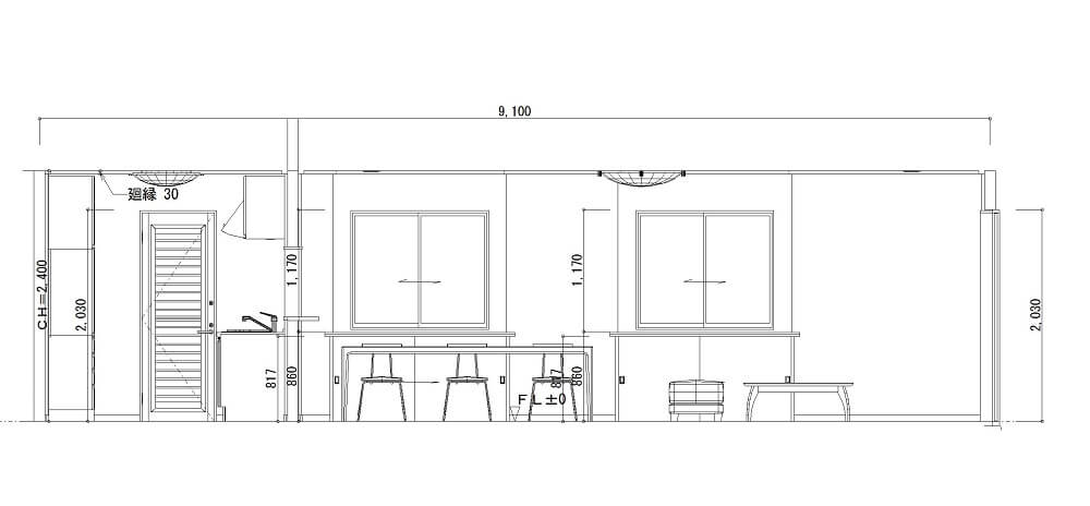
    日々、生活している中で僕たちが触れている物にはすべてサイズがある。
    家具・家電はもちろん、着ている洋服と全てにサイズがある。

    その人に

    大体は規格的なものがあって、例えば洋服はS・M・Lとサイズがあるし男性と女性とでもサイズ感は異なる。その中で僕たちは自分がしっくり来るサイズを好んで生活しているのが日常である。
    ダイニングテーブルにしても、リビングのソファにしても、座り心地や使いやすさは感覚的なものになるので実感はないだろうけれど実際計ってみるとあなたが使いやすい物は大体サイズや寸法に共通点がある。
    こと建築、しかも住宅になるとこういった人間の感覚の尺度、ヒューマンスケールが大事になる。キッチンやカウンターはどれくらいの高さか、棚はどれくらいの奥行きでどう作るのがいいか。
    住宅を作るときはS・M・Lじゃなくて、住む人のスケール感(サイズ感)が大きく影響する。
    料理するのが奥さんだけであれば、それに合わせたキッチンの高さにすれば良い。
    けれど共働きで家事を分担していて、旦那さんも料理をする家庭だったらどうだろう。
    奥さんだけでなく、旦那さんのことも気にかけて造りを考えなくてはならない。
    そうしなければただ単純に使いにくいだろうし、毎日の料理で腰を痛めるのは忍びない。

    否定ではなくて

    規格的なものに否定があるわけじゃなくて、むしろオーダーの良さを知ってほしいと思う。
    家を買おうと考え始めて、色んな会社さんを見て調べて、少し先に進むと見積を取って。
    そうやって家作りはおぼろげに見えていく物だけれどやっぱり生きて生活をしていたら、自分のスケール感があるし、こだわって欲しい部分。
    窓のサイズ、開け方、引戸の引き手、玄関やトイレの手摺の高さ。
    標準的な寸法と言うもの、伝統的な造りはあるけれど、それを使うのはそこに住む人なわけで3cmや5cmを突き詰めていく作業は大変だけれど、分かってくると自分ってこうだったんだとなる。
    ちょうど良いってとっても良いことなんですよ、皆さん。

    この記事を書いた人
    石崎 幸崇

    設計士 石崎 幸崇

    打合せではお客様の気になることや質問に豊富な知識で気さくに応えてくれます。年間100本以上の映画鑑賞をしており(99%自宅)どちらかというと彼は草食動物でありながらも、ひっそりと知的な女性を好んでいます。好きな女優:黒木あい。気になっているアーティスト:内村友美。南相馬市生まれ。大学は仙台。社長のお子さんにXmasプレゼントを贈り続けているという優しい一面も。

人気のあるブログ